

**Na predaj historická budova "Vodný hrad" – unikátna investičná príležitosť v regióne**
Cena: Dohodou
| Lokalita: Veľké Uherce | Rozloha: 779,79 m2 |
| Ulica / časť: Hlavná | Počet miestností: |
| Stav nehnuteľnosti: pôvodný stav | ID nehnuteľnosti: 84772 |
Popis:
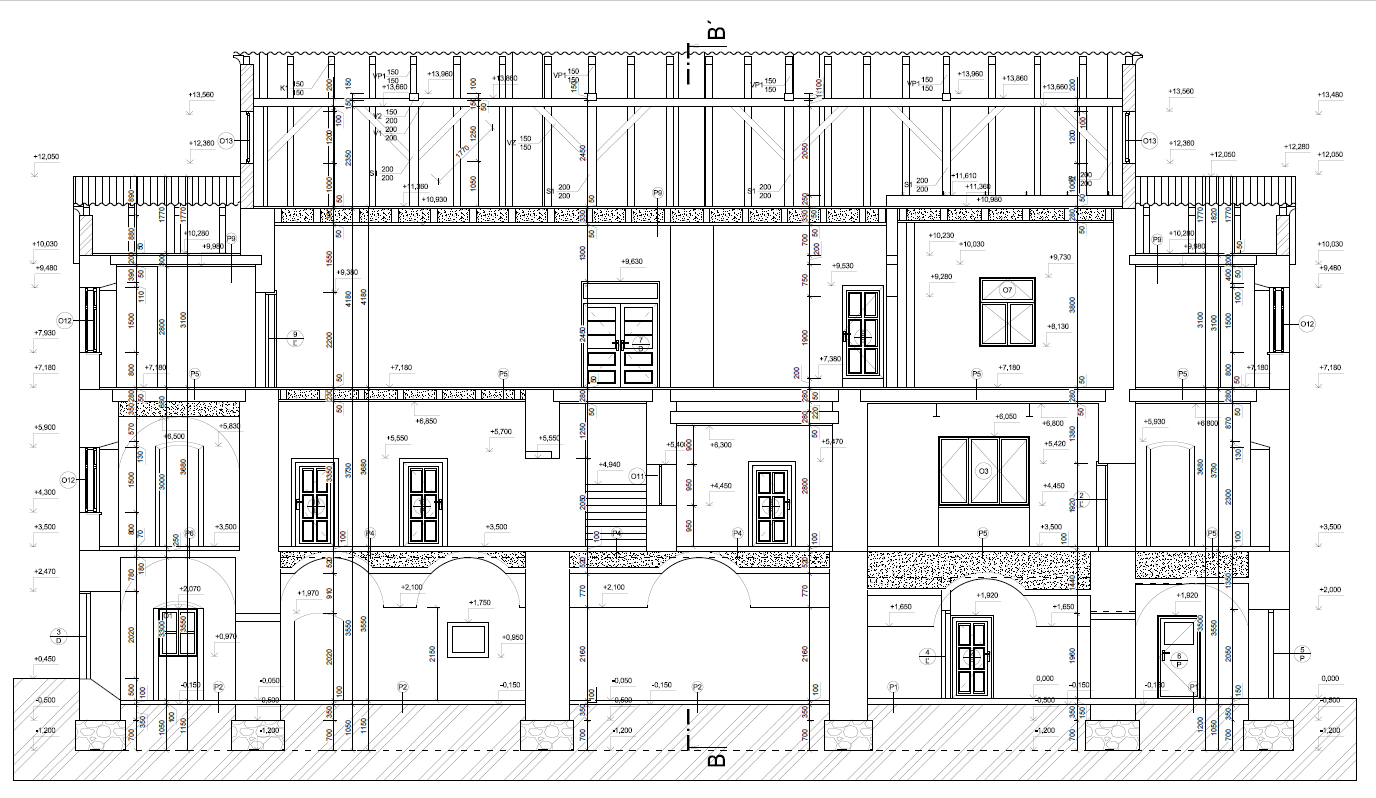
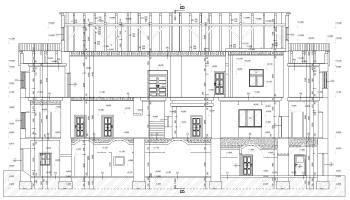
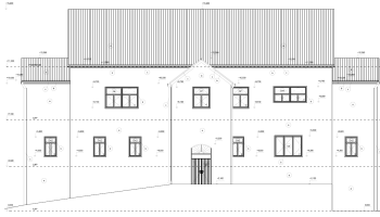
Ponúkame na predaj výnimočný historický objekt "Vodný hrad", ktorého pôvod siaha až do začiatku 14. storočia. Stavba sa nachádza v atraktívnej lokalite v tesnej blízkosti kaštieľa s anglickým parkom. Objekt je mimo pamiatkovej ochrany a nie je situovaný v žiadnom ochrannom pásme – ideálne pre rôzne formy využitia alebo citlivú rekonštrukciu.
Zastavaná plocha: 376,44 m²
Celková úžitková plocha: 779,79 m²
• 1. NP: 240,61 m²
• 2. NP: 255,82 m²
• 3. NP: 283,36 m²
Výmera pozemku: 1763 m² (všetky parcely vedené ako zastavané plochy a nádvoria)
Konštrukčná výška podlaží: 3,5 m
Stavba: murovaná, zmiešané murivo s čiastočnou sanáciou
Strecha: sedlová
IS: elektrina, vodovod
Trojpodlažná budova bez suterénu je prepojená centrálnym schodiskom. V minulosti plnila viacero funkcií:
1985 – 1992: kultúrny dom so spoločenskou sálou a javiskom
Od 1992: výrobné priestory (obuvníctvo), spevnené stropy, sanácia vyšších podlaží
Aktuálne sú v budove:
kancelárie
výrobné a skladové priestory
spoločenské miestnosti
kotolňa
pôvodné drevené okná a dvere
Objekt sa nachádza v obci s kompletnou vybavenosťou:
potraviny, MŠ a ZŠ, pošta
lekáreň, zdravotné stredisko
obecná knižnica, kostol
športoviská a turistika
7 km Partizánske
9,5 km termálne kúpalisko Chalmová
10 km Malé Bielice
vodná nádrž Veľké Uherce, pohorie Tribeč – turistické trasy a príroda
✅ Historická hodnota a potenciál rekonštrukcie
✅ Flexibilné využitie – penzión, kultúrne centrum, ateliér, sídlo firmy
✅ Prírodné prostredie a výborná dostupnosť
✅ Objekt nie je kultúrnou pamiatkou – jednoduchšie stavebné zámery
✅ Kúpa možná ihneď
???? Lokalita: Veľké Uherce, okres Partizánske
???? Stav nehnuteľnosti: vhodný na rekonštrukciu
???? Cena: Dohodou
Michal Toriška
???? +421 904 905 148
???? mtoriska@qreal.sk
Text a fotografie sú autorským dielom a majetkom spoločnosti Q REAL s.r.o.V prípade záujmu vám radi zašleme pôdorysy jednotlivých podlaží vo formáte PDF.
| |
![]() Zodpovedný maklér: Michal Toriška +421 904 905 148 mtoriska@qreal.sk |